Bán Tòa nhà căn hộ dịch vụ số 155/230 Mễ Trì Thượng

Khu vực
Giá : 4.9 VNĐ/m2 Diện tích 45 m2

Thông tin mô tả

Bán tòa nhà căn hộ dịch vụ số 155/230 Mễ Trì Thượng đầy đủ đồ, giá đẹp, ngõ rộng ô tô vào tận cửa, cách mặt đường 100m

previous arrow
next arrow
Slider

Instance 1

CHO THUÊ TÒA NHÀ CĂN HỘ DỊCH VỤ

Cho thuê Tòa nhà căn hộ dịch vụ số 155/230 Mễ Trì Thượng đầy đủ đồ, giá đẹp

4 tỷ 900 triệu

  • Diện tích: 45m2
  • Hướng Tây Bắc
  • 10 Phòng, đủ đồ
  • 2 mặt tiền, ngõ rộng, ô tô cách nhà 100m
  • Mã BĐS: MT – 001

AMILAND xin cung cấp thêm thông tin như sau:

Vị trí: phố Mễ Trì Thượng

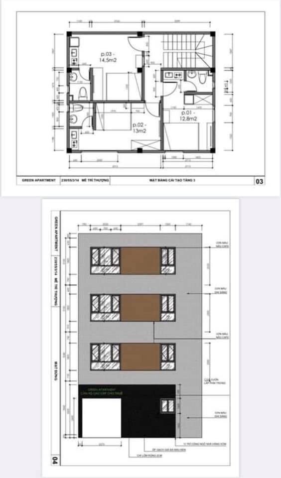
Diện tích: diện tích 45m2 x 4 tầng

Hiện trạng: Nhà có 2 mặt tiền, chiều dài mặt tiền đến 7.8M cực kỳ đẹp, Ô tô vào tận nhà mà cách mặt đường chỉ khoảng 100M

Nhà có hướng tây bắc, bao gồm 10 phòng đầy đủ đồ, sàn gỗ, với giường ngủ, tivi, tủ lạnh, tủ bếp, điều hòa, nhà vệ sinh đẹp, nóng lạnh đầy đủ. 

Giá cho thuê có thể đạt 45tr/tháng, giá cho thuê lại cả tòa nhà khoảng 33tr

Giá bán: 4 Tỷ 900 triệu

Hình ảnh của nhà

Cho thuê Tòa nhà căn hộ dịch vụ số 155/230 Mễ Trì Thượng đầy đủ đồ, giá đẹpCho thuê Tòa nhà căn hộ dịch vụ số 155/230 Mễ Trì Thượng đầy đủ đồ, giá đẹpCho thuê Tòa nhà căn hộ dịch vụ số 155/230 Mễ Trì Thượng đầy đủ đồ, giá đẹpCho thuê Tòa nhà căn hộ dịch vụ số 155/230 Mễ Trì Thượng đầy đủ đồ, giá đẹp

AMILAND – Bất động sản Thổ cư/Nhà phố

Vpgd: Tầng 4, Số 7A Mạc Thị Bưởi, P Vĩnh Tuy, Q Hai Bà Trưng, Hà Nội

Tel/Fax: 0243 8332626  – Hotlines: 0904927888 / 09394 88666

E.mail: info.amiland@gmail.com

Website: www.amiland.vn

Đặc điểm bất động sản

Thông tin liên hệ

GỬI YÊU CẦU THUÊ BẤT ĐỘNG SẢN